0 545 692 18 28

G.O.P Bulvarı Taşhan No:110 TOKAT

Top

Tokat Tarihi Osman Paşa Konağı Restorasyon ve Butik Otel Dönüşüm Projesi

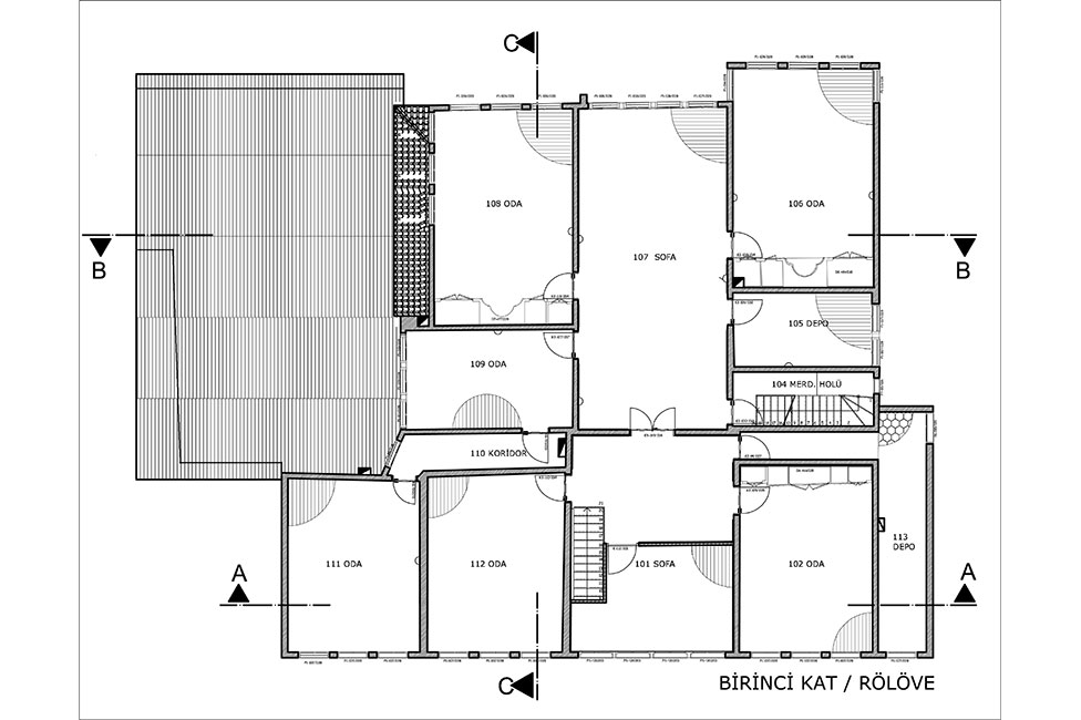
Osmanpaşa Konağı iç sofalı Türk Evi tipolojisinde olup 19. yy. da Alaybeyoğlu Osman Paşa tarafından yaptırılmış bir yapıdır. Geçmişte Orman Müdürlüğü, İmam Hatip Lisesi Pansiyonu, Görme Engelliler Okulu ve Tokat Merkez Kız Kur’an Kursu olarak hizmet vermiştir. Tokat ili tarihi Bey Sokak üzerinde yer alan konak bodrum, zemin, birinci kattan oluşmaktadır. Ahşap karkas arası kerpiç dolgu tekniğiyle inşa edilen Osmanpaşa Konağı’na güneyde Bey Sokak’a cephe veren bahçesinden giriş sağlanmaktadır. Kuzey cephesinde de bahçesi bulunan yapı bahçeye bakan cephelerinde çıkmalı ve simetrik bir düzene sahiptir.

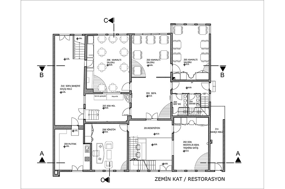
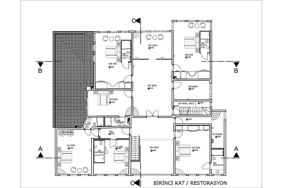
Restorasyon ve İşlev değişim Projesiyle Butik Otele dönüştürdüğümüz konağın restorasyon uygulaması tamamlanmış çevre düzenleme çalışmalarına başlanmıştır. Butik Otel olarak işlevlendirilen yapının zemin katında resepsiyon, yeme-içme alanları ile mutfak ve ıslak hacimler yer almakta, birinci katında ise butik odalar ve odalara ait ıslak hacimler bulunmaktadır. Oda içlerinde yer alan ahşap ve alçı işçiliği ile yapılmış özgün şerbetlik ve tavan detayları ile yapı güzide bir Tokat Evi örneğidir.

Category:
Proje Yeri:

Tokat - Merkez

Proje Tipi:

Restorasyon& İşlev Değişim

Proje Tipi Grubu:

Tescilli Sivil Mimari Yapı Projesi

İşveren:

Tokat İl Özel İdaresi

Proje Başlangıç Yılı:

2016

Proje Bitiş Yılı:

2016

İnşaat Başlangıç Yılı:

2019

İnşaat Bitiş Yılı:

2019

Date: