0 545 692 18 28

G.O.P Bulvarı Taşhan No:110 TOKAT

Top

Tarihi Canikli Konağı Restorasyon ve Kültür Evi Dönüşüm Projesi

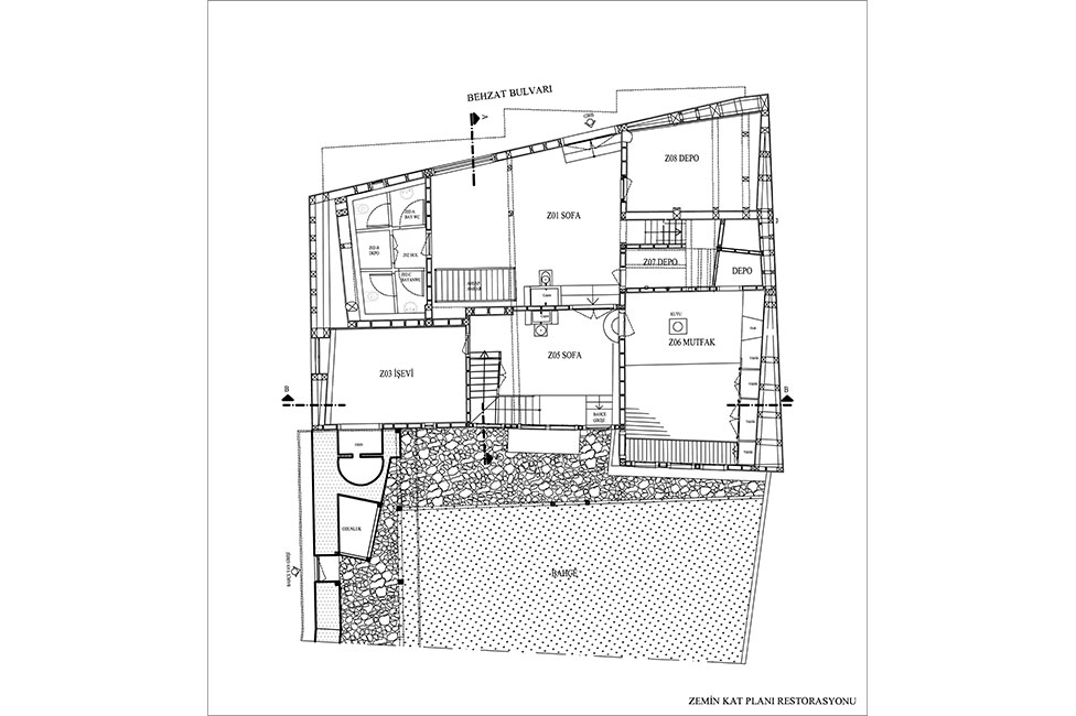
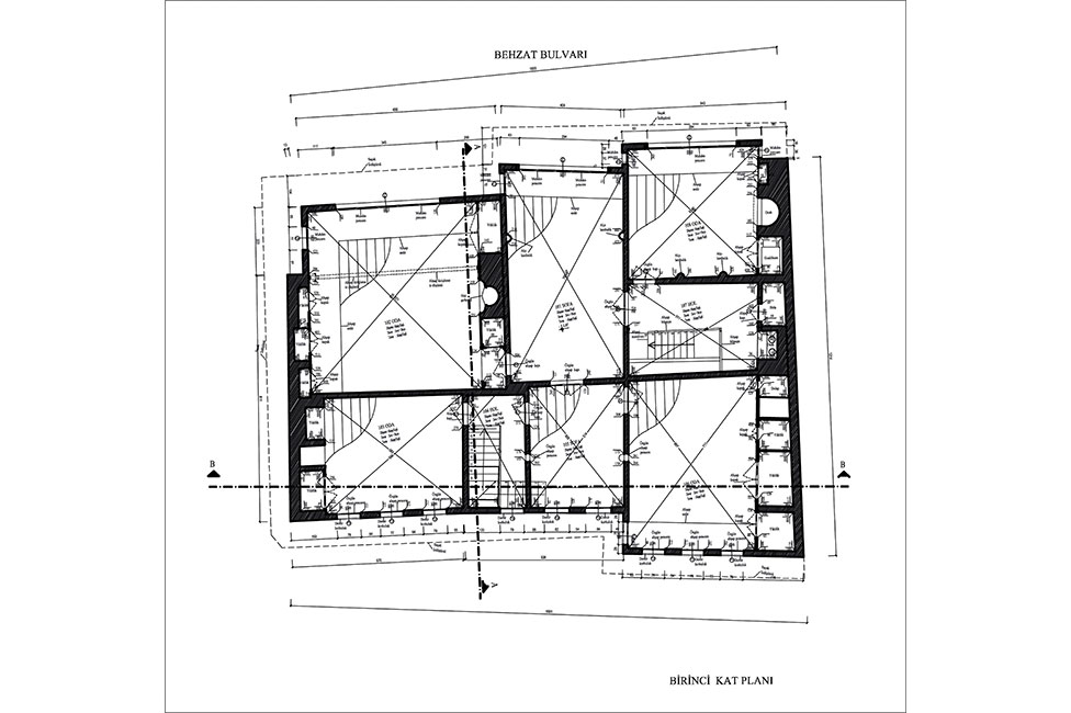
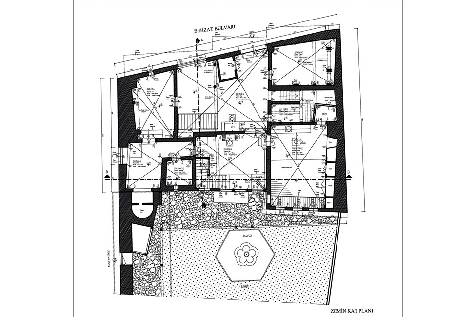
Tokat’ın eski kent dokusundan sayılı örneklerin günümüze ulaştığı Mahmutpaşa Mahallesi’nde yer alan 1700’lü yıllarda Rufani Şeyhi’nin evi olarak inşa edilen Canikli Konağı’nın rölöve-restitüsyon ve restorasyon projeleri firmamızca hazırlanmış, Sivas Koruma Kurulunca onaylanmıştır. Onarım çalışmalarından sonra Kültür Evi ve El Sanatları Merkezi olarak kullanılan yapının baş odasında raspa sonrası karşılaşılan kalemişi bezeme ve ayetler en az müdahele ile korunmuştur. Birçok geleneksel Tokat evinde olduğu gibi Canikli Konağı’nda da dış görünüm sade iken iç görünüm zengin bezeme ve ahşap işçiliğiyle donatılmıştır.

Restorasyon uygulaması ile yapı her türlü niteliksiz ekten ve kötü onarım izlerinden arındırılarak Kültür Evi–El Sanatları Merkezi olarak işlev kazanmıştır. Uygulamada restitüsyon projesinde ve sanat tarihi raporunda belirtilen detaylar gerekli görülen bölgelerde tekrar yapılmış, geçmişten günümüze gelen özgün yapısal izler korunarak yerinde bakım ve onarımının sağlanması esas alınmıştır. Bu kapsamda yapının taşıyıcı sistem ve çatı aksamında yer alan kullanılamaz durumdaki ahşap taşıyıcılarının ve çatı örtüsünün değişimi dışında müdahalede bulunulmamıştır. Özgün malzemenin korunması ve bakım onarımının yapılmasıyla birlikte yeni işlev kazanan yapının ömrünün uzatılması sağlanmıştır. Çevre düzenleme projesi ile kullanılamaz durumda olan bahçe yenilenerek yeni işleve hizmet eden verimli bir açık alan haline gelmiştir. Tokat Belediyesi mülkiyetinde olan yapı günümüzde yerli ve yabancı turistlerin Tokat’ın tarihi konut ve günlük yaşam kültürünü yaşadığı, yöreye ait el sanatlarını deneyimlediği bir kültür evi olarak varlığını sürdürmektedir.

Category:
Mimar:

Seda Kavukcuoğlu YÜZER

Proje Yeri:

Tokat - Merkez

Proje Tipi:

Restorasyon& İşlev Değişim

Proje Tipi Grubu:

Tescilli Sivil Mimari Yapı Projesi

İşveren:

Tokat Belediyesi

Proje Başlangıç Yılı:

2017

Proje Bitiş Yılı:

2017

İnşaat Başlangıç Yılı:

2018

İnşaat Bitiş Yılı:

2019

Date: